agence Loïc Tatinclaux

80 logements à Milan
L'immeuble en L, joue le rôle de limite pour notre ilôt, il possède un grand linéaire et se retourne au niveau de la place.
3 typologies différentes y sont développées :
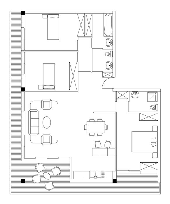
Une typologie traversante, double orientation avec vue sur le jardin et vue sur la rue
Une typologie éclairée sur 3 côtés, située aux extrémités du L, dont le plan est une variante de la typologie traversante
Une typologie d'angle, ouverte sur 2 faces qui se retourne au niveau de la place publique
Pour la tour, on trouve deux typologies :
Une typologie d’angle pour 2 appartements comportant une pièce salon/cuisine largement ouverte sur le cœur d’ilt.
Une typologie orientée nord qui profite du linéaire de la terrasse pour déployer l’ensemble de ses pièces de vie.
Chaque appartement possède au moins deux orientations différentes et bénéficie d’un balcon filant reliant partie jour et partie nuit, d’une largeur généreuse qui en fait un véritable espace extérieur habité.
Les chambres s'ouvrent sur ce balcon extérieur par des baies vitrées toute hauteur qui laissent entrer profondément la lumière.
Les persiennes coulissantes permettent de se protéger et de contrôler la lumière en été, et assurent l'intimité des chambres.
















